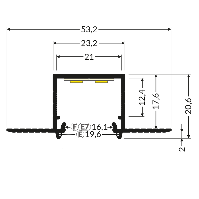
Hidden 23.17 är en LED-profil som spacklas in i tak. För att få ett jämnt ljus använd en LED-strip med LED som har 120 stycken LED per meter, alternativt en COB-LED.
Montering
Aluminiumprofilen monteras med hjälp av genomgående skruv.
Diffusorer & tillbehör
Används med diffusor Typ C4 som beställs separat. Ändstycken och skarvstöd finns som tillbehör.





